Transformación total, así quedó este piso después de una reforma integral

Salón del piso reformado.
Salón del piso reformado. | Nuria García - Gorostidi Ideas

Descubre esta increíble reforma integral de un piso de 125 m2 renovado al detalle. Te mostramos los planos del antes y después y las ideas decorativas aplicadas para conseguir un ambiente más acogedor y funcional.

Funcionalidad y mejor distribución de cada espacio. Ese era el objetivo principal de esta reforma integral llevada a cabo en un piso de 125 m2 localizado en un municipio de Bizkaia a escasos 7 kilómetros de Bilbao.

Un piso familiar de tres miembros donde la decoración de cada rincón ha sido estudiada al detalle, logrando un estilo completamente atemporal e inspirador.

La reforma antes y después (con planos)

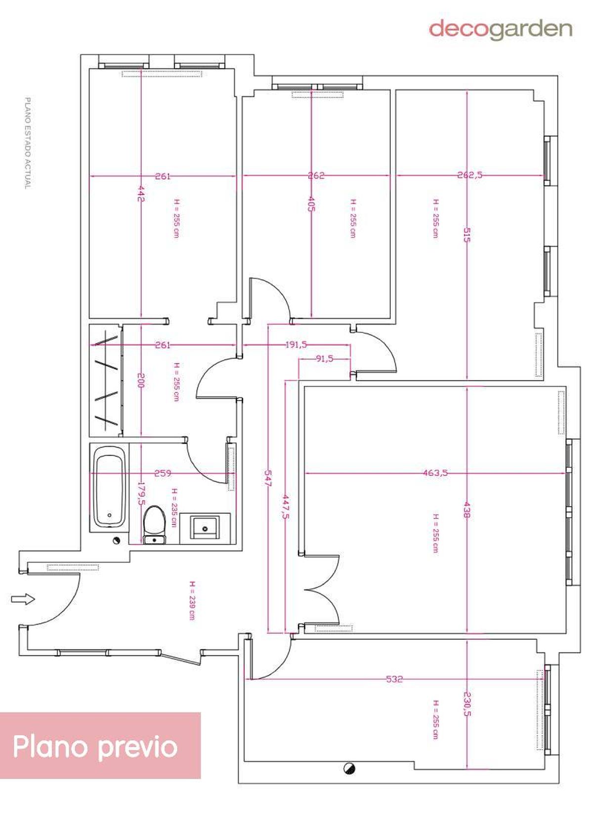
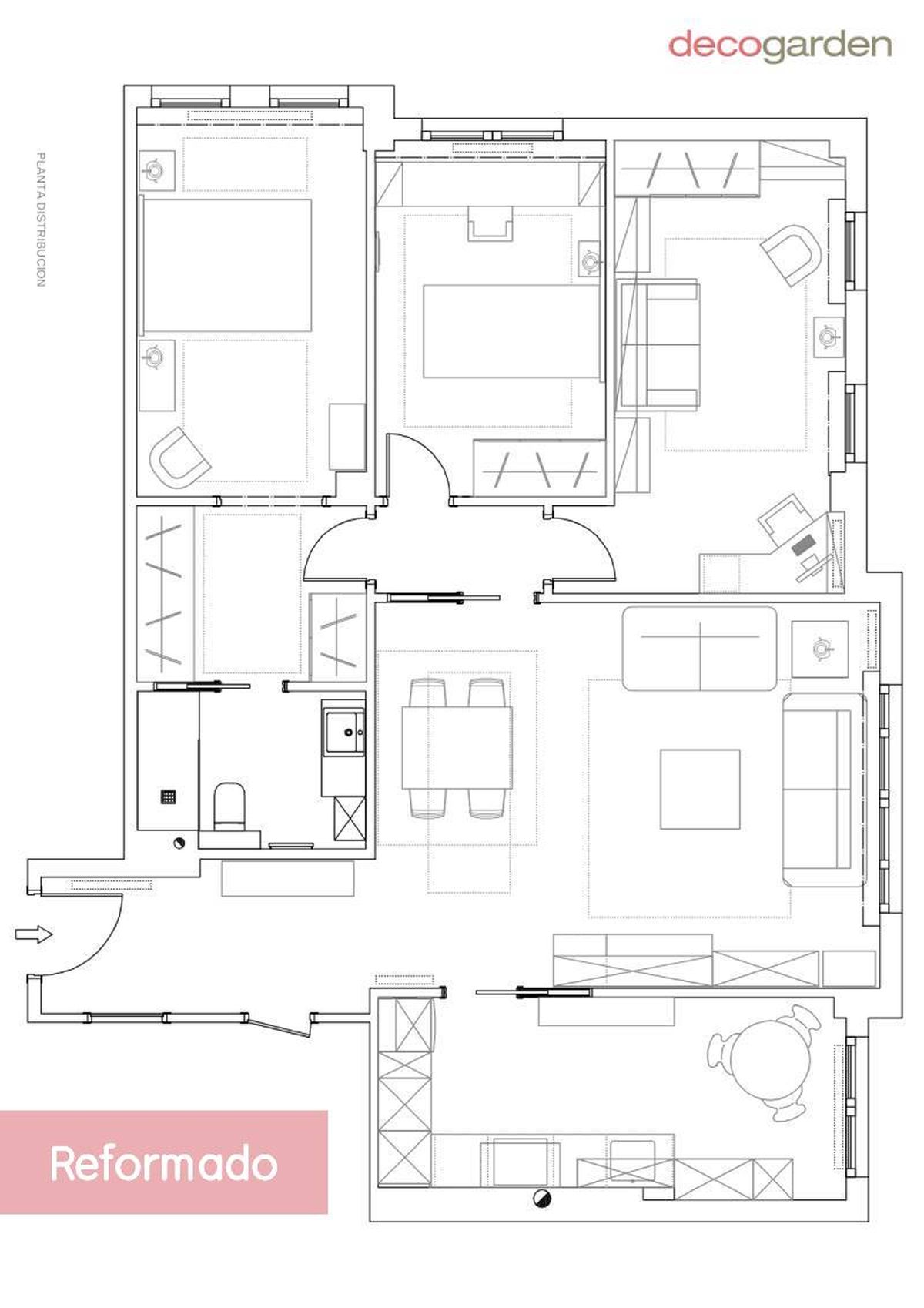
El objetivo principal de esta reforma integral es conseguir un ambiente más funcional y unos metros mejor distribuidos. Para ello, como se aprecia al comparar ambos planos, se ha ampliado el espacio de algunas de las estancias para lograr una distribución más práctica e inteligente.

De esta forma, se han dado metros de pasillo, que no tenían mayor utilidad, para crear una zona de comedor dentro del salón. También se modifica la distribución de la zona del dormitorio principal para estructurar es espacio y crear un vestidor. Además, se han incorporado puertas correderas para un tránsito más cómodo e integrado en cocina, salón y baño principal.

Plano previo antes de la reforma integral. / Fuente: Nuria García - Gorostidi Ideas
Plano previo antes de la reforma integral. / Fuente: Nuria García - Gorostidi Ideas
Plano con la reforma aplicada./ Fuente: Nuria García - Gorostidi Ideas
Plano con la reforma aplicada./ Fuente: Nuria García - Gorostidi Ideas

Características y detalles de la reforma integral del piso

A continuación, te cuento las características esenciales de la reforma y algunos detalles decorativos interesantes que pueden inspirarte en tu próxima renovación del hogar.

Mobiliario y complementos decorativos

Todo el mobiliario y complementos decorativos utilizados para esta reforma son de Gorostidi Ideas, empresa de referencia en el sector de la decoración. Los cuadros que adornan las paredes, de Luis Blanco.

El suelo

Entre los diferentes cambios llevados a cabo en esta reforma integral, se ha procedido a un acuchillado completo del suelo, con el fin de retirar el pinky de toda la superficie y dejar la madera al natural. Después, se ha aplicado un barniz al agua.

Recibidor del piso.
Recibidor del piso. | Nuria García - Gorostidi Ideas

El salón-comedor

El salón-comedor es una de las estancias más interesantes del piso, ya que en él comienza el objetivo de la reforma. Bajo el concepto de optimizar el ambiente, se dan metros del pasillo al salón, para así crear un pequeño y acogedor comedor.

Salón en tonos beiges con complementos azules.
Salón en tonos beiges con complementos azules. | Nuria García - Gorostidi Ideas

Sobre su decoración, destaca el papel pintado colocado en la pared del comedor, para marcar la diferencia de espacios y darle personalidad. El papel, también, de Gorostidi Ideas.

Salón comedor con un original papel pintado.
Salón comedor con un original papel pintado. | Nuria García - Gorostidi Ideas

El dormitorio principal

Del salón-comedor pasamos al dormitorio principal. En él, tras la reforma, se logra crear una pequeña estancia a modo de vestidor. Junto al cuarto de baño principal, esta estancia se transforma en una elegante habitación en suite.

Dormitorio principal con decoración beige y malva.
Dormitorio principal con decoración beige y malva. | Nuria García - Gorostidi Ideas

Para su decoración se han combinado colores beiges con malvas, que aportan relajación y crean un ambiente más agradable, dos cuestiones esenciales en un dormitorio. El papel pintado de estampado vegetal también juega con las mismas tonalidades.

Dormitorio principal con cabecero acolchado y papel pintado de estampado vegetal.
Dormitorio principal con cabecero acolchado y papel pintado de estampado vegetal. | Nuria García - Gorostidi Ideas

Baño principal

El baño principal de la pareja se renueva por completo, añadiendo una puerta corredera, inodoros suspendidos con cisterna empotrada y alicatado de ducha en contraste con el resto de los azulejos.

Alicatado en contraste en la zona de la ducha.
Alicatado en contraste en la zona de la ducha. | Nuria García - Gorostidi Ideas

Dormitorio juvenil

El dormitorio juvenil cumple con todas las características que todo adolescente podría querer en su habitación. Un amplio mural elaborado con papel pintado de Nueva York en la pared enfrentada a la cama, mobiliario en color blanco para motivar la concentración...

Dormitorio juvenil con mural de Nueva York.
Dormitorio juvenil con mural de Nueva York. | Nuria García - Gorostidi Ideas

En esta estancia el amplio escritorio está hecho a medida, colocado frente a la ventana para lograr una mayor luminosidad.

Zona de escritorio del dormitorio juvenil.
Zona de escritorio del dormitorio juvenil. | Nuria García - Gorostidi Ideas

El cuarto de baño

Para el segundo cuarto de baño se llevan a cabo cambios no estructurales que aporten un aire renovado, como la colocación de una mampara o la incorporación de un espejo nuevo más moderno.

Zona del lavado del segundo baño.
Zona del lavado del segundo baño. | Nuria García - Gorostidi Ideas

El estudio

Si hablamos de una estancia multifunción esa es, sin duda, el estudio. Un espacio ideado para ser despacho, biblioteca e incluso cuarto de invitados al mismo tiempo, gracias al elegante sofá cama en color azul que preside la estancia.

Estudio decorado en tonos azules con rincón de lectura.
Estudio decorado en tonos azules con rincón de lectura. | Nuria García - Gorostidi Ideas

A destacar, también, la estantería puente que permite aprovechar el espacio al máximo en un hogar de lectores empedernidos.

Estudio con armario puente.
Estudio con armario puente. | Nuria García - Gorostidi Ideas

La cocina

En la cocina también se ha llevado una reforma completamente integral. De esta forma, se crea un rincón de desayuno y se añaden diferentes espacios para ganar almacenaje.

Cocina en blanco y visón con zona de desayuno.
Cocina en blanco y visón con zona de desayuno. | Nuria García - Gorostidi Ideas

En la zona para cocinar se llevan a cabo también cambios interesantes para ganar practicidad, el más destacable: La encimera se sube por el frente para facilitar la limpieza y mantenimiento.

La cocina combina armarios en blanco y visón, generando una sensación de mayor amplitud. Como curiosidad, la persiana para guardar pequeños electrodomésticos es el secreto decorativo clave de esta estancia.

Nuria García

Graduada en Arquitectura de interiores (IADE), y con extensa trayectoria en el sector del diseño y la decoración, he transformado numerosos inmuebles y locales comerciales, impregnándolos de un estilo renovado y funcional que refleja los gustos y necesidades específicas de cada cliente. Aquí, en Hogarmania, muestro algunos de mis trabajos y proyectos en el sector decorativo, además de ofrecer consejos sobre tendencias actuales para crear ambientes únicos y personalizados.

stats